Thiết kế nội thất quán cafe 150 triệu tại Đà Nẵng
- Thứ Tư , 30/09/2020 00:00 GTM+7
Sau khi tư vấn thiết kế kiến trúc, chủ đầu tư Mr Nam đã nhờ Web Nội Thất lên ý tưởng thiết kế nội thất quán cafe này. Với sự tin tưởng, kiến trúc sư nội thất Mr Trung đã có bản phác họa cụ thể và chi tiết nhất, bạn có thể tham khảo trong bài viết dưới đây.
Thiết kế nội thất nhà hàng Nhật Bản tại Đà Nẵng
- Thứ Ba , 29/09/2020 00:00 GTM+7
Tại Đà Nẵng có nhiều kiến trúc nhà hàng mang phong cách nổi bật. Tuy nhiên thiết kế nội thất nhà hàng Nhật Bản với sự kết hợp giữa kiến trúc hoàng gia Nhật và nghệ thuật ẩm thực phương Tây mang đến không gian ấm áp, sang trọng cho thực khách khi ghé chân.
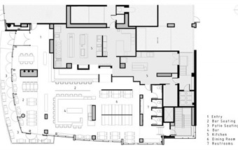
Thiết kế nội thất nhà hàng ăn nhanh trong trung tâm thương mại tại Đà Nẵng
- Thứ Ba , 29/09/2020 00:00 GTM+7
Với diện tích hơn 300m2, thiết kế nội thất nhà hàng ăn nhanh trong trung tâm thương mại tại Đà Nẵng mang đến không gian sang trọng, hiện đại và tiện nghi cho khách hàng.
Trang trí nội thất văn phòng tại Đà Nẵng cho công ty Gia Trần
- Thứ Ba , 29/09/2020 00:00 GTM+7
Đà Nẵng được xem là nơi đáng sống của Việt Nam. Hiện nay, có rất nhiều công ty, văn phòng mở rộng tại Đà Nẵng với mong muốn xây dựng nền kinh tế của đất nước nói chung và Đà Nẵng nói riêng, hướng đến nền kinh tế phát triển toàn diện. Đi cùng với sự phát triển là nét đẹp tổng thể, đó là lý do lĩnh vực nội thất văn phòng tại Đà Nẵng đang dần hoàn thiện. Công trình trang trí nội thất cho công ty Gia Trần dưới đây là một ví dụ, quý bạn đọc có thể tham khảo.
