50 ý tưởng thiết kế nội thất căn hộ 2 phòng ngủ đẹp và tiện nghi
- Thứ Ba , 29/09/2020 00:00 GTM+7
Căn hộ chung cư 2 phòng ngủ hiện nay đang khá phổ biến ở Việt Nam, diện tích sử dụng không quá lớn tầm 60m2, 70m2 phù hợp với các cặp vợ chồng trẻ hoặc gia đình có ít thành viên sinh sống. Thiết kế nội thất căn hộ 2 phòng ngủ để có thể tối ưu được diện tích sử dụng thì bạn cần phải có sự tính toán kỹ lưỡng trong việc lựa chọn phong cách thiết kế nội thất. Trong bài viết này các kiến trúc sư của Web Nội Thất sẽ giới thiệu cho các bạn một hướng thiết kế nội thất đẹp và tiện nghi dành cho căn hộ 2 phòng ngủ.
Gợi ý thiết kế nội thất căn hộ chung cư 2 phòng ngủ tại Hà Nội
- Thứ Ba , 29/09/2020 00:00 GTM+7
Hiện nay căn hộ chung cư ngày càng trở nên phổ biến tại Việt Nam, được các gia đình trẻ ưa chuộng bởi sự tiện nghi và hiện đại. Nhu cầu thiết kế nội thất căn hộ chung cư được nhiều người tìm kiếm, nhất là thiết kế nội thất căn hộ chung cư 2 phòng ngủ. Trong bài viết này chúng tôi sẽ cung cấp cho bạn một số gợi ý thiết kế nội thất căn hộ chung cư 2 phòng ngủ để bạn có thêm sự lựa chọn cho mình.
Thiết kế nội thất chung cư 70m2 áp dụng cho mọi gia đình
- Thứ Ba , 29/09/2020 00:00 GTM+7
Với lối thiết kế nội thất thông minh, gọn gàng, ngăn nắp, thẩm mỹ và đặc biệt mang đến không gian đáng sống cho gia đình bạn với những mẫu thiết kế nội thất chung cư 70m2. Rất dễ áp dụng cho mọi gia đình Việt Nam.
Những gợi ý tuyệt vời giúp bạn thiết kế nội thất chung cư 90m2 đẹp từng cm
- Thứ Ba , 29/09/2020 00:00 GTM+7
Chung cư với diện tích 90m2 được xem là sản phẩm nhà đất lý tưởng mà nhiều người lựa chọn. Bởi lẽ, với diện tích vừa phải như vậy rất thích hợp cho các mô hình gia đình Việt hiện đại cả về diện tích sử dụng và giá trị cuộc sống. Vậy, với nhu cầu ở chung cư lớn như hiện nay thì những gợi ý thiết kế nội thất chung cư 90m2 nào nên được áp dụng? Hãy cùng chúng tôi tìm hiểu ngay trong những thông tin dưới đây nhé.
Thiết kế nội thất căn hộ chung cư 70m2 với phong cách tinh tế và hiện đại
- Thứ Ba , 29/09/2020 00:00 GTM+7
Thiết kế nội thất căn hộ chung cư 70m2 làm sao cho đẹp mắt, hiện đại và tối ưu được công năng sử dụng đang là câu hỏi băn khoăn của khá nhiều chủ dự án khi tìm đến với WeDo. Trong bài viết này các kiến trúc sư của chúng tôi sẽ cung cấp cho các bạn một số bí quyết để hoàn thiện ngôi nhà thân yêu của mình nhé.
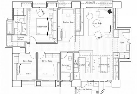
Tư vấn thiết kế nội thất chung cư 3 phòng ngủ tiện nghi phong cách hiện đại
- Thứ Ba , 29/09/2020 00:00 GTM+7
Một ngôi nhà mang phong cách hiện đại xen lẫn nét nghệ thuật và không kém phần tiện nghi đang là xu hướng được nhiều khách hàng lựa chọn, đặc biệt là các gia đình trẻ tuổi. Thiết kế nội thất chung cư 3 phòng ngủ được ưa chuộng nhất chính là phải đơn giản trong thiết kế nhưng đường nét phải tinh tế, nội thất tiện nghi đáp ứng được nhu cầu đa dạng và hưởng thụ cuộc sống cũng như sử dụng gam màu nhẹ nhàng, sáng sủa giúp thư giãn.
5 kinh nghiệm thiết kế nội thất căn hộ chung cư đẹp và tiết kiệm chi phí
- Thứ Ba , 29/09/2020 00:00 GTM+7
Thiết kế nội thất căn hộ chung cư là cụm từ khóa được khá nhiều người tìm kiếm trên các trang công cụ trong thời gian gần đây. Hẳn ai cũng hiểu hết được tầm quan trọng của quá trình thiết kế nội thất có ảnh hưởng quan trọng tới không gian sống, tuy nhiên không phải lúc nào bạn cũng có kinh nghiệm để có thể tự mình thiết kế nội thất căn hộ chung cư đẹp và tiết kiệm chi phí. Trong bài viết dưới đây Web Nội Thất sẽ mách nước cho các bạn một số kinh nghiệm để có một thiết kế đẹp và tiết kiệm.
Thiết kế nội thất chung cư hiện đại có những đặc điểm nổi bật gì?
- Thứ Ba , 29/09/2020 00:00 GTM+7
Không còn lựa chọn trong các chung cư có thiết kế kém hấp dẫn, giờ đây thiết kế nội thất chung cư hiện đại được xem là một trong những phong cách sống đặc biệt được nhiều người yêu thích. Đây là một trong số ít các sản phẩm của thiết kế nội thất được đông đảo các kiến trúc sư và gia chủ đánh giá là hợp thời và không bao giờ lỗi mốt.
Kinh nghiệm thiết kế nội thất chung cư đẹp chắc chắn bạn chưa biết
- Thứ Ba , 29/09/2020 00:00 GTM+7
Thiết kế nội thất chung cư đẹp là cụm từ khóa được khá nhiều người tìm kiếm trong thời gian gần đây, ai cũng có những lo lắng và mong muốn riêng để có thể hoàn thành không gian sống đẹp mắt, tiện nghi và khoa học nhất. Tuy nhiên để có thể có một thiết kế nội thất chung cư đẹp, bạn nên chuẩn bị cho mình nhiều kiến thức cũng như những kinh nghiệm quan trọng và cần thiết. Bài viết dưới đây sẽ cung cấp cho bạn nhiều kinh nghiệm bổ ích, với cái nhìn hiện đại hợp với xu thế để bạn có thêm những ý tưởng mới để có thể hoàn thiện căn hộ như mong muốn.
Thiết kế nội thất chung cư 150m2 hoàn hảo từ thẩm mỹ đến chất lượng
- Thứ Ba , 29/09/2020 00:00 GTM+7
Chung cư 150m2 được xem là sự lựa chọn của nhiều người bởi đây là không gian có diện tích lý tưởng cho một gia đình 2 đến 3 thế hệ. Chính vì vậy, khi chuẩn bị lựa chọn sinh sống trong không gian này, thiết kế nội thất chung cư 150m2 như thế nào mới thực sự hợp lí và đẹp hoàn mỹ là điều mà nhiều người đặc biệt quan tâm.
Giải pháp thiết kế nội thất chung cư nhỏ vô cùng tiện ích
- Thứ Ba , 29/09/2020 00:00 GTM+7
Chung cư nhỏ nếu biết cách bài trí cũng như áp dụng các giải pháp thiết kế nội thất thông minh, ngôi nhà của bạn vẫn đảm bảo tính thông thoáng, tiện lợi và thẩm mỹ đó.
Mê mẩn với mẫu thiết kế nội thất chung cư hiện đại diện tích 85m2
- Thứ Ba , 29/09/2020 00:00 GTM+7
Nếu như các căn nhà phố, biệt thự chú trọng cả ngoại thất lẫn nội thất thì các căn hộ chung cư lại tập trung vào thiết kế nội thất bên trong, đây chính là yếu tố làm nên tính riêng biệt thể hiện được sở thích, gu thẩm mỹ cũng như đẳng cấp của chủ nhân. Trong thiết kế nội thất chung cư, không gian sống thoải mái và tiện nghi là điều mà bất kỳ kiến trúc sư nào cũng mong muốn đạt được. Việc sở hữu diện tích 85m2 là một điều kiện lý tưởng cho những mẫu nội thất chung cư hiện đại. Việc chọn lựa nội thất, bày trí và sắp xếp đồ đạc một cách thông minh sẽ giúp cho căn nhà của bạn trở thành một tổ ấm theo đúng nghĩa.
Tư vấn thiết kế nội thất căn hộ chung cư đẹp và tiện nghi
- Thứ Ba , 29/09/2020 00:00 GTM+7
Tại các thành phố lớn như Hà Nội, tốc độ đô thị hóa, hiện đại hóa đang diễn ra mạnh mẽ. Nhiều dự án căn hộ chung cư mọc lên để đáp ứng nhu cầu về nhà ở của bộ phận số đông, kéo theo đó là dịch vụ tư vấn thiết kế nội thất căn hộ chung cư của các công ty ồ ạt ra đời. Làm thế nào để có một không gian sống đẹp và tiện nghi? Các chuyên gia của Web Nội Thất sẽ chia sẻ cho bạn những bí quyết quan trọng để hoàn thiện dần ý tưởng thiết kế ngôi nhà của mình.
Phương án thiết kế nội thất nhà chung cư 90m2 mang vẻ đẹp tinh tế
- Thứ Ba , 29/09/2020 00:00 GTM+7
Các căn hộ chung cư hiện nay rất đa dạng về diện tích và không gian chức năng để phù hợp với mục đích sử dụng của từng hộ gia đình. Hơn nữa, việc thiết kế nội thất trong căn hộ chung cư cũng ngày càng được chú trọng để giúp căn hộ đẹp và tiện nghi hơn. Thay vì lựa chọn các căn hộ có diện tích nhỏ thì các căn hộ chung cư 70m2, 80m2, 90m2, 100m2,… được nhiều người lựa chọn. Vì thế, những mẫu thiết kế nội thất nhà chung cư 90m2 hiện đang là xu hướng lựa chọn của nhiều gia đình. Không chỉ bởi những căn hộ này sở hữu diện tích lớn phù hợp với những gia đình có nhiều thành viên mà những thiết kế nội thất tinh tế đã biến những căn hộ chung cư này trở thành một tổ ấm thực sự.
Thiết kế nội thất chung cư 1 phòng ngủ liền kề các không gian chức năng
- Thứ Ba , 29/09/2020 00:00 GTM+7
Với diện tích 35m2, thiết kế nội thất chung cư 1 phòng ngủ phải làm sao để có thể sở hữu không gian tiện nghi và đẹp mắt? Mặt khác tính thẩm mĩ này phải tiết kiệm không gian, tối ưu hóa từng m2 nhỏ cho căn hộ.
Các mẫu thiết kế nội thất chung cư 70m2 đẹp và tiện nghi, dễ ứng dụng
- Thứ Ba , 29/09/2020 00:00 GTM+7
Xu hướng sống độc thân và các gia đình đơn thế hệ là một trong những xu thế cực kì phát triển trong những năm trở lại đây. Chính vì vậy, thay vì các chung cư với diện tích lớn thì nhiều người lại mong muốn được sống và tận hưởng trong các không gian vừa nhỏ với nội thất, tiện nghi đầy đủ. Và đó chính là lí do tại sao các dịch vụ thiết kế nội thất chung cư 70m2 đặc biệt được nhiều gia đình lựa chọn. Bài viết này sẽ đưa ra các kinh nghiệm trong thiết kế chung cư diện tích 70m2 và những mẫu thiết kế đang được ưa chuộng hiện nay.
Thiết kế nội thất chung cư 3 phòng ngủ đang được ưa chuộng nhất hiện nay
- Thứ Ba , 29/09/2020 00:00 GTM+7
Căn hộ chung cư 3 phòng ngủ đang là một trong những loại căn hộ được lựa chọn nhiều nhất hiện nay. Vì sao vậy? Chung cư 3 phòng ngủ đáp ứng được nhiều tiêu chí đặt ra cho một gia đình Việt hiện nay. Nó không chỉ phù hợp với mô hình gia đình từ 2 đến 3 thế hệ mà còn khá phù hợp với mức thu nhập của các gia đình. Để có một căn hộ chung cư 3 phòng ngủ đẹp và tiện nghi cùng chi phí thiết kế hợp lý nhất, dưới đây, Web Nội Thất giới thiệu đến Quý khách hàng mẫu thiết kế nội thất chung cư 3 phòng ngủ đang được ưa chuộng nhất hiện nay.
Thiết kế nội thất căn hộ 3 phòng ngủ hiện đại và tiện nghi cho gia đình trẻ
- Thứ Ba , 29/09/2020 00:00 GTM+7
Căn hộ 3 phòng ngủ đang là một trong những lựa chọn nhiều nhất hiện nay đối với nhà ở chung cư. Nhờ những ưu thế về diện tích, số phòng cùng chi phí không quá lớn phù hợp với nhiều mô hình gia đình Việt, hiện nay, căn hộ chung cư 3 phòng ngủ đang được rất nhiều khách hàng tìm hiểu và lựa chọn cho tổ ấm của mình. Đặc biệt, những gia đình trẻ có từ 1 đến 2 con tìm đến với mô hình nhà chung cư 3 phòng ngủ này khá lớn. Vì vậy, đáp ứng thị hiếu của Quý khách hàng, Web Nội Thất giới thiệu mẫu thiết kế nội thất căn hộ 3 phòng ngủ hiện đại và tiện nghi cho gia đình trẻ. Hy vọng, mẫu thiết kế nhà đẹp này sẽ là một trong những gợi ý tuyệt vời cho ý tưởng xây dựng tổ ẩm sắp tới của bạn.
Thiết kế nội thất chung cư 46m2 với tông màu đen - trắng
- Thứ Ba , 29/09/2020 00:00 GTM+7
Chỉ sử dụng hai tông màu đen và trắng, sự đối lập của sắc màu đem đến sức sống mới cho căn hộ nhỏ. Phương án thiết kế nội thất chung cư 46m2 theo phong cách hiện đại, có sự tối giản về màu sắc và bố cục, chắc chắn sẽ khiến bài mê đắm khi ngắm nhìn. Đừng bỏ qua phương án thiết kế này, nếu bạn đang kiếm tìm cho mình những điểm sáng lý tưởng cho căn hộ nhỏ nhé.
Mẫu nội thất căn hộ chung cư 3 phòng ngủ tiện nghi tại An Khánh
- Thứ Ba , 29/09/2020 00:00 GTM+7
Phải bố trí mẫu nội thất căn hộ chung cư 3 phòng ngủ như thế nào để đảm bảo không gian sinh hoạt khoa học, ấn tượng cho gia đình 4 thành viên? Sử dụng phong cách hiện đại, bố trí công năng khoa học, ưu tiên tông màu ấm cúng, bạn nghĩ sao về phương án thiết kế nội thất của gia đình chị Lan Anh, ở khu đô thị An Khánh?
